1-к, Маяковского, 6 Показать на карте
Лобня
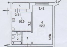
Id 22951. Продается просторная 1-комнатная квартира со свежим современным ремонтом всего в 3-х минутах ходьбы до станции МЦД D1 ''Лобня''.В квартире сделан комплексный ремонт в 2021-2022 г. с заменой всей электропроводки, труб водоснабжения, газового оборудования, пластиковых окон и сантехники. Дополнительно выполнено остекление балкона, установлены новая входная дверь и кондиционер.Общая площадь 30.2 кв.м, жилая площадь 16.6 кв.м, комната 16.6 кв.м, кухня 6.5 кв.м, коридор 4 кв.м, с/у совм 3 кв.м, балкон 2.8 кв.м (коэф.=0.3)Прямая продажа. Полная стоимость в договоре. Без обременений.Один взрослый собственник. Документы готовы для любой сделки.Помощь в получении выгодных условий по ипотеке.ИНФРАСТРУКТУРА для КОМФОРТНОГО ПРОЖИВАНИЯ, РАБОТЫ и ПРОВЕДЕНИЯ КУЛЬТУРНОГО ДОСУГАВ шаговой доступности находятся:Центральный парк культуры и отдыха г. Лобня 5 минут пешкомПарк с озером 3 минуты пешкомОзеро ''Киово'' - памятник природы федерального значения - 5 минут пешкомОздоровительно-спортивный комплекс - 3 минуты пешкомАшан, Пятерочка, Торговые ряды, Дикси, SPAR - 2 минуты пешкомЛобненская центральная городская больница 12 минут пешкомДетская поликлиника 10 минут пешкомДраматический театр - 12 минут пешкомЦентральная библиотека - 2 минуты пешкомАдминистрация города (Управление опеки, отдел культуры), торговые центры, банки, медицинские центры, стоматология, аптеки, супермаркеты, кафе, рестораны, парикмахерские, бытовые услуги.Для детей дошкольного и школьного возраста:Средняя общеобразовательная школа 8 имени Г.Д. Будника Лобненская детская школа искусствШкола роста (раннего развития детей)Детский сад 7 ''Ягодка''Детский сад 14 ''Радуга''Детский сад 10 ''Незабудка''Колледж Подмосковье (учебный корпус 7)ТРАНСПОРТНАЯ ДОСТУПНОСТЬ Пешком:Станция ''Лобня'' МЦД D1 и автостанция 3 минутыНа авто или на общественном транспорте:Аэропорт Шереметьево 8.5 кмДмитровское шоссе 8.6 кмЛенинградское шоссе 12 кмФедеральная трасса М11 8 км
30 м2
5 / 5 этаж
Кирпич
- Показать контакты
- Добавить в избранное
30 м2
5 / 5 этаж
Кирпич
4 500 000
149 007 /м2
