Продается двухкомнатная квартира в центральном районе города Лобня.
Квартира расположена в теплом кирпичном доме на первом, ВЫСОКОМ, этаже. В 2026 году выполнен евроремонт с заменой электропроводки и сантехнического оборудования.
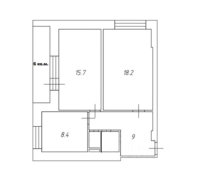
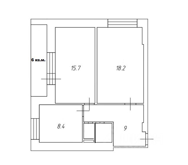
Общая площадь 56,4 кв.м. Две изолированные комнаты 15,7 кв.м. и 18,2 кв.м., объединенный с/у, просторная остекленная лоджия 6 кв.м., функциональная кухня 8,4 кв.м.
Транспортная доступность: МЦД Лобня 10 минут пешком, на личном авто удобный выезд на Дмитровское и Ленинградское шоссе.
Инфраструктура: все социальные объекты в пешей доступности: школа, детский сад, ПКиО Лобня, детский дом творчества Чайка, ледовый дворец и Дворец спорта, поликлиника, магазины общественного питания.
Продается двухкомнатная квартира в центральном районе города Лобня.
Квартира расположена в теплом кирпичном доме на первом, ВЫСОКОМ, этаже. В 2026 году выполнен евроремонт с заменой электропроводки и сантехнического оборудования.
Общая площадь 56,4 кв.м. Две изолированные комнаты 15,7 кв.м. и 18,2 кв.м., объединенный с/у, просторная остекленная лоджия 6 кв.м., функциональная кухня 8,4 кв.м.
Транспортная доступность: МЦД Лобня 10 минут пешком, на личном авто удобный выезд на Дмитровское и Ленинградское шоссе.
Инфраструктура: все социальные объекты в пешей доступности: школа, детский сад, ПКиО Лобня, детский дом творчества Чайка, ледовый дворец и Дворец спорта, поликлиника, магазины общественного питания.
Документы: в собственности с 2005 года, один взрослый собственник, альтернативная сделка.
Просмотры по предварительной договоренности.
Возможно приобретение с использованием ипотечных средств, оказываем содействие в одобрении ипотеки.
По всем интересующим вопросам звоните по указанному номеру телефона.