Если цена в объявлении изменится, мы сразу сообщим вам об этом на электронную почту.
Нажимая «Подписаться», вы соглашаетесь с правилами.
продам 3-к, Эйнштейна бульвар, 515 500 000 ₽
1 авг 2025
Дата публикации объявления
Обн. 30 сен
Дата обновления объявления
Топ
213 499 ₽/м²
Чистая продажа
Термин "Чистая продажа" означает, что в квартире никто не прописан или
есть куда выписаться и вывезти вещи. Это лучший вариант для покупателя.
Вероятность срыва сделки минимальна.
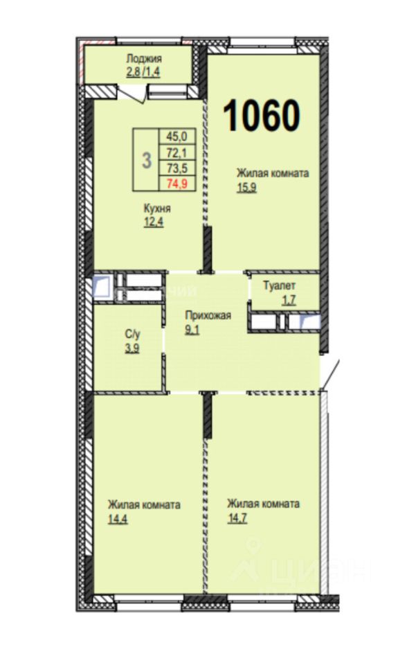
В продаже отличная 3-х комнатная квартира свободной планировки площадью 72.6 кв.м. (плюс лоджия 2,80 кв.м.)
Дом монолитно-кирпичный 2023 года постройки. Огороженная территория, двор без машин, подземный паркинг.
Квартира расположена на 15 этаже 22-этажного дома. В подъезде на этаже 4 квартиры. Черновая отделка от застройщика. В квартире два санузла, три изолированные комнаты и просторная кухня с выходом на лоджию. Окна смотрят во двор и на Лайф Арену.
Дом расположен в престижном районе с развитой инфраструктурой. В шаговой доступности торговые центры, школы, поликлиники, муниципальный детский сад во дворе, аптеки, спортивные клубы, крупный мебельный центр Три Кита, Лайф Арена.
Также есть свой подземный паркинг, отдельно обсуждаемо.
В продаже отличная 3-х комнатная квартира свободной планировки площадью 72.6 кв.м. (плюс лоджия 2,80 кв.м.)
Дом монолитно-кирпичный 2023 года постройки. Огороженная территория, двор без машин, подземный паркинг.
Квартира расположена на 15 этаже 22-этажного дома. В подъезде на этаже 4 квартиры. Черновая отделка от застройщика. В квартире два санузла, три изолированные комнаты и просторная кухня с выходом на лоджию. Окна смотрят во двор и на Лайф Арену.
Дом расположен в престижном районе с развитой инфраструктурой. В шаговой доступности торговые центры, школы, поликлиники, муниципальный детский сад во дворе, аптеки, спортивные клубы, крупный мебельный центр Три Кита, Лайф Арена.
Также есть свой подземный паркинг, отдельно обсуждаемо.
Удобная транспортная доступность, остановка общественного транспорта в 5 мин пешком, МЦД Сколково-15 мин пешком.
Гарантируем безопасность вашей сделки, поможем с одобрением ипотеки со сниженной ставкой!
Остались вопросы, звоните! Покажем квартиру в удобное для Вас время!