В избранном
В избранное
Пожаловаться
Напечатать
Следить за ценой

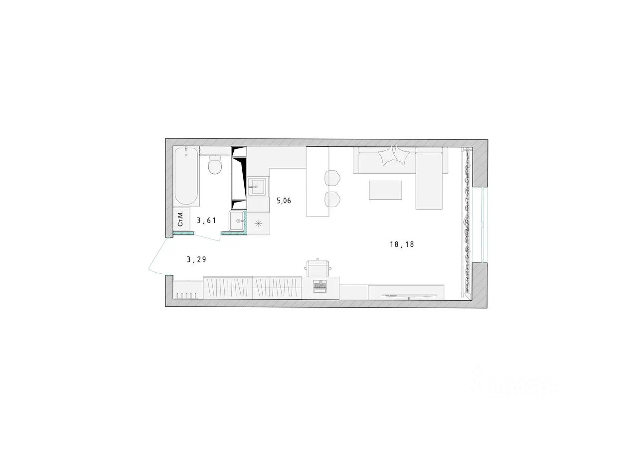
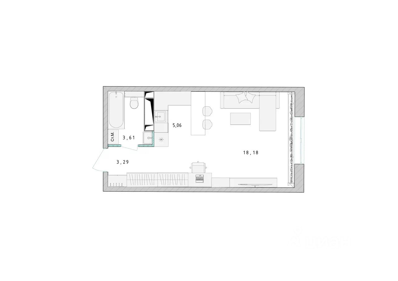
продам 1-к, Ярославское шоссе, 1945 149 100 ₽

26 мая 2025
Обн. 28 апр
170 500 ₽/м²
  • Чистая продажа