Дом, Аксаково Показать на карте
Аксаково
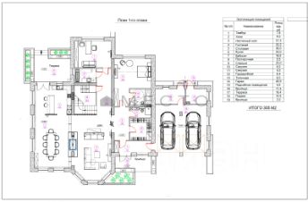
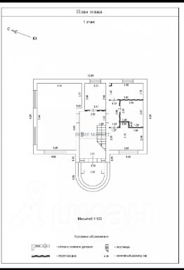
Дом 305 м. + гостевой дом с баней 75 м. + барбекю 36 м. + навес на 5 машин 105 м. Участок 16,7 сот. Постройка 2018, ремонт в 2020Строили себе из высококачественных материалов по индивидуальному проекту в стиле РайтаДмитровское, 20 минут от МКАД (20 км), автобус до метроПест. вдхр. 200 м. санат. РЖД, ФНС (лечение, тренажеры, корты, бассейн)Глиссада в Шереметьево в 5 км от поселка Участок в середине поселка, соседи построились. Широкие дороги. Спорт. площадки для детей и взрослых, тренажеры, места отдыха. Коммуналка 9500 Эл-во 18 квтДом из кирпича Wienerberger, фактурный кирпич. Камень на цоколь и планкен из лиственницы на заказ. Крыша мягкая, многослойная Водосточка GalecoОкна Rehau Intelio 86 профиль, на заказ из Германии Потолки: 1 эт 3,20м, 2 эт 3м.1 эт: Крыльцо 9,8 прихожая 8гардероб 10,1 санузел 4,8гостиная 58,2 кухня 15,5веранда 20,4 кладовая 4 гараж 25,3 котельная 8,7авто-кладовая 13,62 эт: Холл 25,9 кабинет 20,9мастер спальня 20,4 гардеробная 9,8санузел 9,3 прачечная 6 спальня 17,2 санузел 5,4 спальня 16,4 санузел 5,4Электрика с запасом, интернет, антенна Подоконники деревянныеДизайнерские радиаторы Сантехника GROHE, TECE, Rehau премиумКерамогранит Испания, ИталияПол дуб, индивидуальный заказ Двери 230 см Лестница дуб с правильным шагом 5 кондиционеров Встроенный пылесос Beam-Platinum Камин чугунный SUPRA Франция. 10 вент. каналов. Кровати Кинг Сайз 200*200. Диван и кресла со спальными местами, антивандальный нубук. Фасад кухни керамика, вся техника BoschЭргономика и функционал дома продуманы до мелочей, в каждой спальне свой санузел с душевой, все переходы безбарьерные, просторные гардеробные, кладовые, гараж с антресолями, кладовая для садового и авто инвентаряФундамент с запасом прочности на 5 этажейСтены 60 см, в сочетании с энергосберегающими окнами дом очень теплый, (батареи на 35-37 градусов, малый расход газа), Отмостка, дорожки, все на бетонном основании, стоянки и въезд - фундаментная плита 150.8 камер. Ин-т оптоволокно и бесшовный WI-FI по дому и участку. ТВ аналоговая и спутниковая, по всем комнатам. Котел Buderus, медь и Rehau премиум, очистка и смягчение воды. Въезд, стоянка, дорожки-с подогревом (зимой не чистить)Гостевой дом с баней 75 м:Прихожая 3,7 кухня-гост. 29,8комн. отдыха/спальня 25,8 с/у, помывочная 9,6 парилка 6,5Фундамент как в доме. Кирпичный Wienerberger с утеплителем, отделан планкеном из лиственницы. Окна от пола Rehau Теплый пол по всей площади и дизайн. радиаторыПол каменный ламинат SPCПечь дровяная Feringer, дверь-стекло, камень змеевикПарилка из липы, термолипы и абаши Полки 80 см Зона барбекю 36 м.Отдельно стоящее строение на фундаменте, для круглогодичного использования. Канализация, водопровод, вытяжка, утепленная крыша (на будущее)Лента, Магнит, Леруа, Пятерочка, ТЦ, конюшня, аптеки, салоны красоты, муницип. дет. сады и школа, храм, все на расст. 2-8 км
305 м2
2 этажа
Кирпич
- Показать контакты
- Добавить в избранное
305 м2
2 этажа
Кирпич
89 900 000
294 754 /м2
